Print current pageProduct Description
- brief introduction
- technical parameter
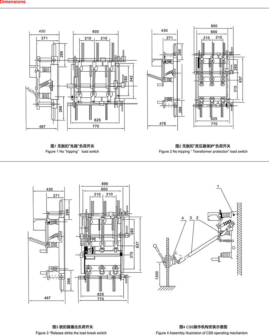
- Product size
General
FN7-12D type indoor load break switch is suitable for operating in the three-phase AC50Hz, rated voltage 12KV system, to break the power source and make short circuit current, the fuse switch can break the current up to rated short circuit level, as protective equipment.
Normal service conditions
Ambient air temperature: -25℃~+40℃,
Altitude: ≤ 1000m;
Humidity:
Daily average value of relative humidity: ≤95%
Monthly average value of relative humidity: ≤90%
The ambient air is not significantly polluted by dust, smoke, corrosive and/or flammable gases, vapours or salt.

中文
ENGLISH
Email:
website:
Service hotline





